人民桥连接工业大道

1952年,海珠区郊区被作为广州市重要的工业基地开始建设,因此有了如今的工业大道。彼时,广州重型机器厂等多家工厂、企业落户于此。住在西关,上班在工业大道,成了当时广州人日常生活的动线,修建“第二海珠桥”的计划应运而生。

昔日的工业大道

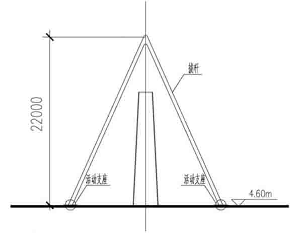
20世纪60年代,建桥依旧是一项高难度工程。这一次广州人选择了自主设计和建造。针对如何吊装重达110吨的40米大梁的问题,设计人员创新提出了搭“积木“的办法—设计人字拔杆,以此吊装大梁。

“人字拨杆”起重技术示意图

人字拔杆可利用木材进行接驳拼装,既经济又方便。更重要的是,当时的吊船最多只能吊起重100吨的大梁,人字拔杆有效解决了限重问题。

1965年11月4日,人民桥正式动工。大桥选址白鹅潭附近,北起六二三路,南至洪德路,连接工业大道。1967年5月1日,人民桥竣工通车。

老照片:人民桥竣工

之后,每天都有无数自行车自“河北“驶过人民桥,驶向”河南“的工业区、港口、码头,”河南“的货车也满载着工业品通过人民桥,去往”河北“。

人民桥及旁边的内环路

到了二十世纪七八十年代,大到万宝冰箱、五羊牌自行车,小到灶台边的双桥牌味精、收音机里的555牌电池、抽屉角落里的双鱼牌乒乓球,全来自工业大道。这里还创造了广州第一艘万吨巨轮、中国第一台离心机、世界上第一件钛制潜水服等多个“第一“。

在高空从北向南俯瞰夜幕下的工业大道

连接,是一座桥梁的使命。颇有意思的是:向南,这座广州人心目中的“新桥“连接的是辉煌的工业发展;向北,连接的是沙面、西堤—广州最具欧陆风情的繁华之地,以及当时以南方大厦为标志的城市商业中心。一南一北,人民桥将这座城市的记忆连成一线。